Trilocale in vendita

Curtatone - Buscoldo
€ 110.000
Prezzo aggiornato
3 locali 3 locali
74 Mq 74 Mq
1 bagno 1 bagno

Trilocale in vendita

Curtatone - Buscoldo

Descrizione annuncio

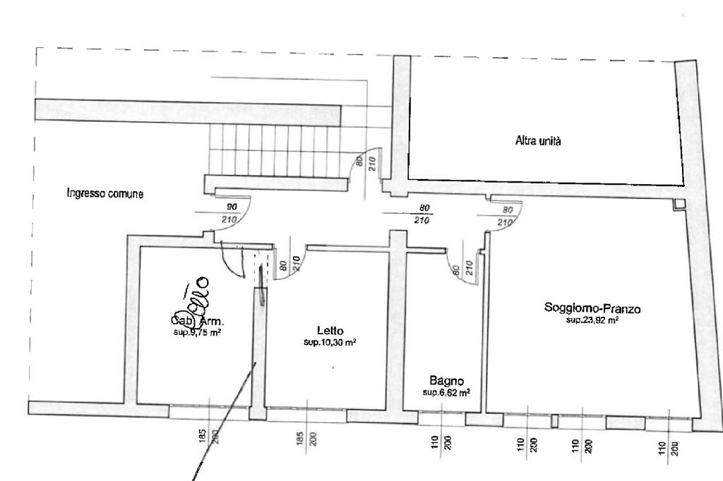
Nel comune di Curtatone, nella tranquilla località di Buscoldo, è disponibile un appartamento in vendita al piano terra. L'immobile è stato costruito nel 2009 e ultimato nel 2025. La disposizione interna comprende: ingresso, soggiorno con angolo cottura, due camere da letto e un bagno con doccia e ripostiglio. Completa la proprietà un posto auto riservato, assicurando comodità e praticità. L'immobile offre un ambiente confortevole e ben collegato ai servizi della zona.

Per motivi di privacy l'indirizzo e numero civico spesso non corrispondono alla reale ubicazione dell'immobile.

SE E’ INTERESSATO/A ALLE NOSTRE PROPOSTE ED HA UNA CASA DA VENDERE, VENGA A TROVARCI PERCHE’ ABBIAMO LA SOLUZIONE IDEALE PER ACQUISTARE E VENDERE CONTESTUALMENTE IN UN’UNICA OPERAZIONE CON ESTREMA SERENITA’ NEL MINOR TEMPO POSSIBILE.
INOLTRE PER CHI VENDE CON NOI, GARANTIAMO I SEGUENTI SERVIZI:

-VALUTAZIONE GRATUITA
-ANALISI DI PROVENIENZA
-VISURE IPOTCARIE, CATASTALI
-MOLTEPLICI E MIGLIORI SERVIZI DI PROMOZIONE PUBBLICITARIA TRADIZIONALI E SULLEE PRINCIPALI PIATTAFORME IN RETE: IDEALISTA, .

Mostra tutto

Nelle vicinanze

Trasporto pubblico Trasporto pubblico
Trasporto pubblico
150 m
Colombina 12
Colombina 12
300 m
Scuole Scuole
Scuole
50 m
Mostra tutto

Caratteristiche

Rif.:
60985023
Piano:
Terra di 3 con ascensore
Totale piani:
3
Posti auto:
1
Balconi:
1
Camere da letto:
2
Mostra tutto
Prezzo Prezzo
€ 110.000
Rata mutuo Rata mutuo
€ 519 / mese
Spese annue Spese annue
€ 600
Proponi il tuo prezzoProponi il tuo prezzo

Classe Energetica

E
E
E
E
E
E
E
E
E
EP globale non rinnovabile:
173.40 kW h/m² anno
EP globale rinnovabile:
0.33 kW h/m² anno
EP invernale del fabbricato:
EP estiva del fabbricato:
Anno di costruzione:
2009
Riscaldamento:
Autonomo
Tipo impianto:
A pavimento
Tipo alimentazione:
Metano

Prezzo ridotto di €1 (9%%)

Ti interessa visionare l'immobile?

Fissa un appuntamento  Fissa un appuntamento

Richiedi informazioni

Clicca su Leggi per aprire l'informativa
* Questi campi sono obbligatori

Calcola il tuo mutuo

Semplice e senza impegno
Anticipo

( % )
Mutuo

( % )

pochi semplici passi

inserisci i tuoi dati
Questionario completato
Grazie per aver richiesto un appuntamento senza impegno con un nostro Consulente del Credito e Assicurativo.

Hai inserito correttamente tutti i dati necessari e a breve riceverai una e-mail con un link da convalidare per inviare i tuoi dati.
Affiliato
Tecnocurtatone Srl
Via Levata, 88/A 46010 Curtatone (MN)

Il nostro staff


  • Fabio Boccia
    Affiliato

  • Michelle Crema
    Collaboratrice

  • Ilaria Greco
    Coordinatrice

  • Wail Grissen
    Collaboratore

  • Giovanni Boccia
    Affiliato
Via Levata, 88/A 46010 Curtatone (MN)
Zona: Curtatone-Castellucchio
Mostra su mappa
Orari: Lunedì - Venerdì 9.00 : 13.00 - 15.00 : 19.30 Sabato 09.00 : 13:00 Sabato pomeriggio e domenica si riceve su appuntamento.
Affiliato
Tecnocurtatone Srl
Via Levata, 88/A 46010 Curtatone (MN)

2026 Tecnocasa Franchising S.p.A. - P. IVA 08365160152 - Via Monte Bianco 60/A 20089 Rozzano (MI). Ogni agenzia ha un proprio titolare ed è autonoma. Privacy policy | Policy utilizzo | Cookie policy