Trilocale in vendita

Curtatone, Via L. Einaudi - Levata
€ 159.000
3 locali 3 locali
95 Mq 95 Mq
1 bagno 1 bagno

Trilocale in vendita

Curtatone, Via L. Einaudi - Levata

Descrizione annuncio

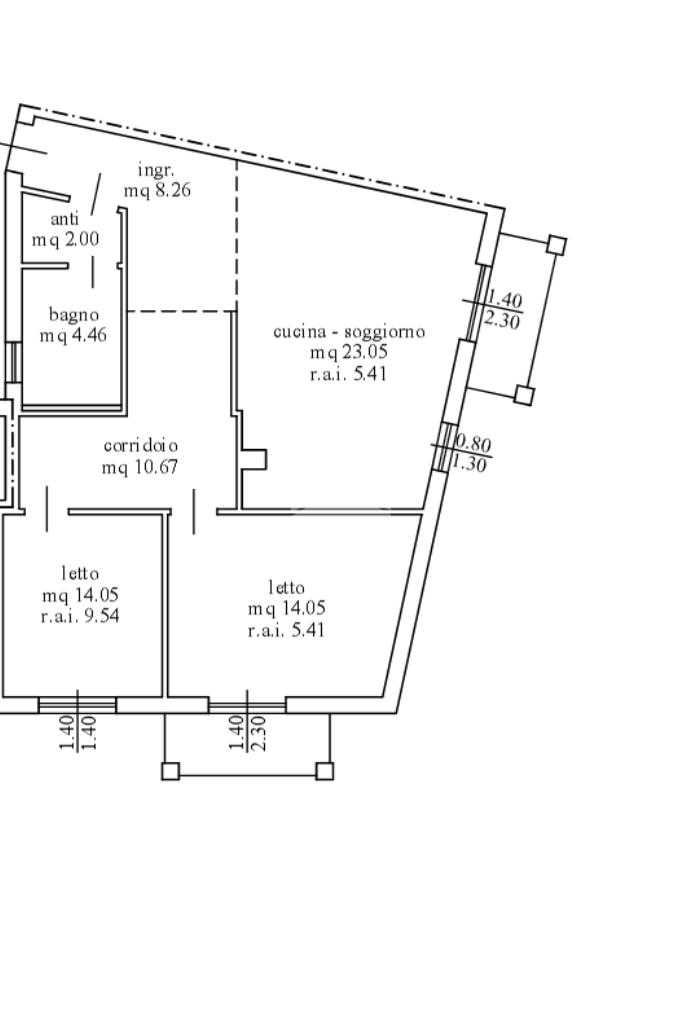
Nel tranquillo e curato contesto di un residence a Levata, proponiamo un’opportunità immobiliare davvero unica per chi cerca una casa capace di adattarsi ai propri desideri. L’immobile situtato al primo ed ultimo piano e attualmente adibito a locale commerciale, sarà presto oggetto di un completo cambio di destinazione d'uso che lo trasformerà in un moderno appartamento trilocale. Il vero punto di forza di questa proposta è la libertà di scelta. Grazie ai rendering già predisposti, potrai decidere la distribuzione degli spazi che più ti rappresenta: se ami la convivialità e la luce, la soluzione con soggiorno e cucina in un unico open space è l'ideale per creare un ambiente moderno e arioso. Se invece preferisci una gestione più tradizionale e ordinata degli spazi, puoi optare per la versione con cucinotto separato, mantenendo la zona living come area dedicata esclusivamente al relax. In entrambe le varianti, la zona notte è stata progettata per offrire il massimo comfort con due camere da letto e un bagno funzionale. La luminosità è garantita da due balconi privati: uno con accesso diretto dal soggiorno, perfetto per una colazione all'aperto, e l'altro collegato alla camera da letto, che regala uno sfogo esterno riservato alla zona più intima della casa. Completa la soluzione un posto auto coperto privato. Vivere all'interno di un residence significa scegliere la sicurezza e il decoro di un ambiente protetto, senza rinunciare alla comodità di avere tutti i servizi di Levata a portata di mano. Acquistare questa soluzione oggi significa trasformare un progetto in una casa 'pari al nuovo', cucita su misura per le tue esigenze.

SE E’ INTERESSATO/A ALLE NOSTRE PROPOSTE ED HA UNA CASA DA VENDERE, VENGA A TROVARCI PERCHE’ ABBIAMO LA SOLUZIONE IDEALE PER ACQUISTARE E VENDERE CONTESTUALMENTE IN UN’UNICA OPERAZIONE CON ESTREMA SERENITA’ NEL MINOR TEMPO POSSIBILE.
INOLTRE PER CHI VENDE CON NOI, GARANTIAMO I SEGUENTI SERVIZI:

-VALUTAZIONE GRATUITA
-ANALISI DI PROVENIENZA
-VISURE IPOTCARIE, CATASTALI
-MOLTEPLICI E MIGLIORI SERVIZI DI PROMOZIONE PUBBLICITARIA TRADIZIONALI E SULLEE PRINCIPALI PIATTAFORME IN RETE.

Mostra tutto

Nelle vicinanze

Trasporto pubblico Trasporto pubblico
Borgochiesanuova, Ipsia
Borgochiesanuova, Ipsia
1,7 Km
Trasporto pubblico
2,0 Km
Levata
Levata
840 m
Borgochiesanuova
Borgochiesanuova
1,9 Km
Ricariche auto elettriche Ricariche auto elettriche
IperTosano Curtatone | EnelX
2,4 Km
Scuole Scuole
Istituto San Giovanni Bosco - Sede di Mantova
1,7 Km
Istituto Superiore "Enrico Fermi"
1,9 Km
Scuole
1,9 Km
Scuola dell'infanzia Collodi
2,4 Km
Istituto Superiore Bonomi-Mazzolari
2,5 Km
Farmacia Farmacia
Farmacia Beduschi
1,3 Km
Farmacia Due Pini
2,7 Km
Ospedali Ospedali
Ospedali
2,3 Km
Istituti Ospedalieri Carlo Poma
2,3 Km
Clinica San Clemente
2,4 Km
Supermercati Supermercati
Ipercoop
1,8 Km
Famila
2,1 Km
IperTosano
2,3 Km
Conad
3,0 Km
Bar Bar
KM3
140 m
Open Spice
1,1 Km
Barlume
1,3 Km
Chiringuito
1,8 Km
Bar
2,0 Km
Ristoranti Ristoranti
Ristorante Pizzeria Ca' Nova
260 m
Trattoria Pizzeria Al Pozzo Blu
1,0 Km
Al Viandante
2,8 Km
Gastronomia Nosari Romano
2,9 Km
Mostra tutto

Caratteristiche

Rif.:
61172963
Piano:
1 di 2 (Piano basso)
Posti auto:
1
Balconi:
2
Camere da letto:
2
Arredamento:
Assente
Mostra tutto
Prezzo Prezzo
€ 159.000
Rata mutuo Rata mutuo
€ 755 / mese
Spese annue Spese annue
€ 500
Proponi il tuo prezzoProponi il tuo prezzo

Classe Energetica

D
D
D
D
D
D
D
D
D
EP globale non rinnovabile:
447.90 kW h/m² anno
EP globale rinnovabile:
26.14 kW h/m² anno
EP invernale del fabbricato:
EP estiva del fabbricato:
Anno di costruzione:
2006
Riscaldamento:
Autonomo
Tipo impianto:
A radiatori
Tipo alimentazione:
Metano

Ti interessa visionare l'immobile?

Fissa un appuntamento  Fissa un appuntamento

Richiedi informazioni

Clicca su Leggi per aprire l'informativa
* Questi campi sono obbligatori

Calcola il tuo mutuo

Semplice e senza impegno
Anticipo

( % )
Mutuo

( % )

pochi semplici passi

inserisci i tuoi dati
Questionario completato
Grazie per aver richiesto un appuntamento senza impegno con un nostro Consulente del Credito e Assicurativo.

Hai inserito correttamente tutti i dati necessari e a breve riceverai una e-mail con un link da convalidare per inviare i tuoi dati.
Affiliato
Tecnocurtatone Srl
Via Levata, 88/A 46010 Curtatone (MN)

Il nostro staff


  • Fabio Boccia
    Affiliato

  • Michelle Crema
    Collaboratrice

  • Ilaria Greco
    Coordinatrice

  • Wail Grissen
    Collaboratore

  • Giovanni Boccia
    Responsabile
Via Levata, 88/A 46010 Curtatone (MN)
Zona: Curtatone-Castellucchio
Mostra su mappa
Orari: Lunedì - Venerdì 9.00 : 13.00 - 15.00 : 19.30 Sabato 09.00 : 13:00 Sabato pomeriggio e domenica si riceve su appuntamento.
Affiliato
Tecnocurtatone Srl
Via Levata, 88/A 46010 Curtatone (MN)

2026 Tecnocasa Franchising S.p.A. - P. IVA 08365160152 - Via Monte Bianco 60/A 20089 Rozzano (MI). Ogni agenzia ha un proprio titolare ed è autonoma. Privacy policy | Policy utilizzo | Cookie policy