Villa a schiera in vendita

Curtatone, Via Emilio Segre' - Villaggio Eremo
€ 275.000
4 locali 4 locali
145 Mq 145 Mq
1 bagno 1 bagno

Villa a schiera in vendita

Curtatone, Via Emilio Segre' - Villaggio Eremo

Descrizione annuncio

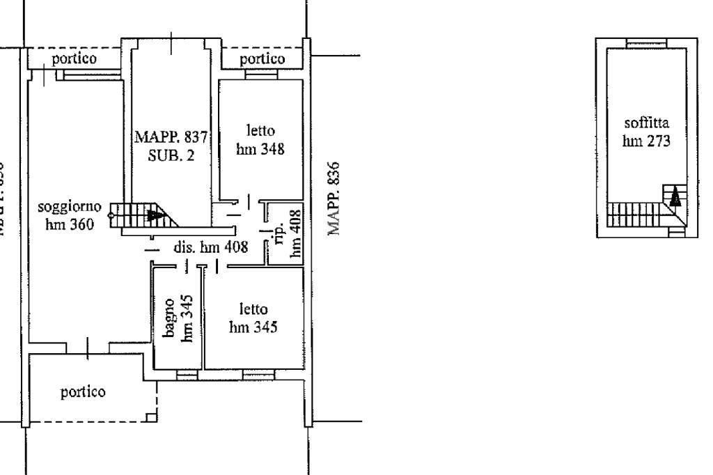
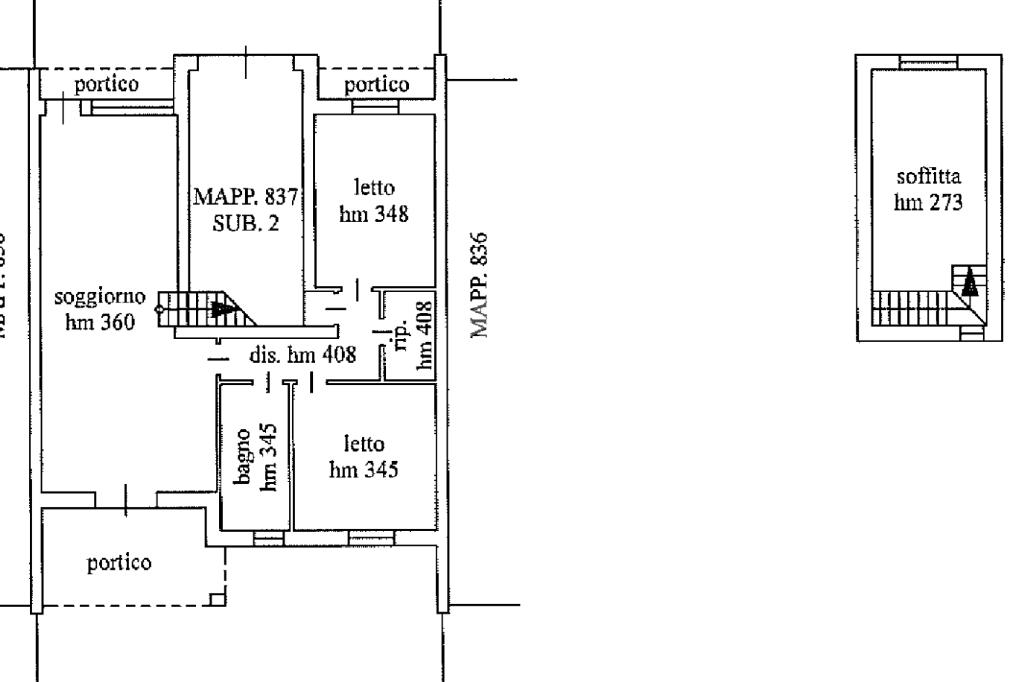
Situata nella zona più ricercata e riservata di Eremo, proponiamo in vendita un’esclusiva villa a schiera centrale, pensata per chi cerca una casa moderna e dotata di ogni comfort. L’abitazione si apre su un luminoso open space che accoglie soggiorno e una cucina dal design contemporaneo, creando un ambiente conviviale e spazioso. La zona notte è composta da due camere da letto ben distribuite, un bagno rifinito con cura e un pratico ripostiglio attualmente adibito a lavanderia. Un grande valore aggiunto è la disposizione dell’abitazione principale su un unico piano oltre che l'accesso diretto dall'abitazione al garage, comodità rare e funzionali. Salendo le scale, si scopre una suggestiva terza camera caratterizzata da moderne travi a vista, che donano calore e un tocco di eleganza architettonica agli spazi. L'esterno non è da meno: l'ingresso è valorizzato da una tettoia automatizzata e detraibile di ultima generazione, ideale per proteggere l'area parcheggio, mentre il verde è gestito da un impianto di irrigazione a goccia automatizzato. Sul retro, la proprietà si trasforma in una vera oasi privata grazie alla splendida veranda e la Jacuzzi con pavimentazione a parquet e doccia esterna, perfetta per momenti di relax in totale privacy. Dal punto di vista tecnico, la casa garantisce massima efficienza e sicurezza grazie al cappotto termico da 5 cm e all'impianto fotovoltaico da 4,2 kW. La protezione è totale, con un sistema di videocitofono e un allarme volumetrico integrato con sensori su tutti gli infissi. Una soluzione 'smart' e pronta da abitare, ideale per una famiglia che non vuole rinunciare a nulla.

SE E’ INTERESSATO/A ALLE NOSTRE PROPOSTE ED HA UNA CASA DA VENDERE, VENGA A TROVARCI PERCHE’ ABBIAMO LA SOLUZIONE IDEALE PER ACQUISTARE E VENDERE CONTESTUALMENTE IN UN’UNICA OPERAZIONE CON ESTREMA SERENITA’ NEL MINOR TEMPO POSSIBILE.
INOLTRE PER CHI VENDE CON NOI, GARANTIAMO I SEGUENTI SERVIZI:

-VALUTAZIONE GRATUITA
-ANALISI DI PROVENIENZA
-VISURE IPOTCARIE, CATASTALI
-MOLTEPLICI E MIGLIORI SERVIZI DI PROMOZIONE PUBBLICITARIA TRADIZIONALI E SULLEE PRINCIPALI PIATTAFORME IN RETE.


Mostra tutto

Nelle vicinanze

Trasporto pubblico Trasporto pubblico
Via Binda - Via Dalla Chiesa (Eremo)
Via Binda - Via Dalla Chiesa (Eremo)
360 m
Trasporto pubblico
970 m
Levata
Levata
1,7 Km
Borgochiesanuova
Borgochiesanuova
2,4 Km
Ricariche auto elettriche Ricariche auto elettriche
IperTosano Curtatone | EnelX
120 m
Scuole Scuole
Scuole
660 m
Scuola Primaria "Carlo Collodi"
1,4 Km
IIS Pietro Antonio Strozzi - sede ITA di Mantova
1,8 Km
Istituto San Giovanni Bosco - Sede di Mantova
2,3 Km
Istituto Superiore "Enrico Fermi"
2,5 Km
Farmacia Farmacia
Farmacia
1,2 Km
Supermercati Supermercati
IperTosano
160 m
Famila
2,3 Km
Centro commerciale Quattro Venti
2,8 Km
MD Supermercati
2,8 Km
Negozi Negozi
Verini
1,8 Km
Bar Bar
Elite Cafè
1,4 Km
Caffetteria Colonna
1,6 Km
Open Spice
2,4 Km
KM3
2,6 Km
Ristoranti Ristoranti
Da Momò Pizzeria Ristorante
1,7 Km
Al Viandante
2,4 Km
Trattoria Isidora
2,7 Km
Ristorante Pizzeria Ca' Nova
2,7 Km
Mostra tutto

Caratteristiche

Rif.:
61201459
Piano:
Terra con giardino di 2
Totale piani:
2
Box:
1
Camere da letto:
3
Arredamento:
Parziale
Mostra tutto
Prezzo Prezzo
€ 275.000
Rata mutuo Rata mutuo
€ 1.296 / mese
Spese annue Spese annue
€ 0
Proponi il tuo prezzoProponi il tuo prezzo

Classe Energetica

B
B
B
B
B
B
B
B
B
EP globale non rinnovabile:
123.98 kW h/m² anno
EP globale rinnovabile:
16.97 kW h/m² anno
EP invernale del fabbricato:
EP estiva del fabbricato:
Anno di costruzione:
2009
Riscaldamento:
Autonomo
Tipo impianto:
A pavimento
Tipo alimentazione:
Metano

Ti interessa visionare l'immobile?

Fissa un appuntamento  Fissa un appuntamento

Richiedi informazioni

Clicca su Leggi per aprire l'informativa
* Questi campi sono obbligatori

Calcola il tuo mutuo

Semplice e senza impegno
Anticipo

( % )
Mutuo

( % )

pochi semplici passi

inserisci i tuoi dati
Questionario completato
Grazie per aver richiesto un appuntamento senza impegno con un nostro Consulente del Credito e Assicurativo.

Hai inserito correttamente tutti i dati necessari e a breve riceverai una e-mail con un link da convalidare per inviare i tuoi dati.
Affiliato
Tecnocurtatone Srl
Via Levata, 88/A 46010 Curtatone (MN)

Il nostro staff


  • Fabio Boccia
    Affiliato

  • Michelle Crema
    Collaboratrice

  • Ilaria Greco
    Coordinatrice

  • Wail Grissen
    Collaboratore

  • Giovanni Boccia
    Affiliato
Via Levata, 88/A 46010 Curtatone (MN)
Zona: Curtatone-Castellucchio
Mostra su mappa
Orari: Lunedì - Venerdì 9.00 : 13.00 - 15.00 : 19.30 Sabato 09.00 : 13:00 Sabato pomeriggio e domenica si riceve su appuntamento.
Affiliato
Tecnocurtatone Srl
Via Levata, 88/A 46010 Curtatone (MN)

2026 Tecnocasa Franchising S.p.A. - P. IVA 08365160152 - Via Monte Bianco 60/A 20089 Rozzano (MI). Ogni agenzia ha un proprio titolare ed è autonoma. Privacy policy | Policy utilizzo | Cookie policy